In Madrid, Studio Burr developed convertible living spaces

In Madrid, Studio Burr developed convertible living spaces

Studio Burr develops transformable living spaces in Madrid. With an exemplary concept, Studio Burr responds to the multiple problems surrounding the creation of private living space. The architects cleverly express their solutions in the structure of the floor plans and in the choice of materials.

by Philine Puffer, 12.01.2022

Building or buying your own home is a once-in-a-lifetime event in most people's lives. The investment, often associated with long-term financial commitments, is the most extensive that an individual usually makes. It brings with it all kinds of stress factors. In particular, the question: How much space do I actually need or want? Not just at the present time, but over several decades. And how can the wishes be financed at all?

The owners of an apartment in Madrid also asked themselves these questions. They found answers in collaboration with the Spanish architectural firm Burr. The studio, led by Elena Fuertes, Ramón Martínez, Álvaro Molins and Jorge Sobejano, developed for the MG08 project a living environment that is flexible in many ways, accommodating both changing space needs and refinancing.

Modification thought along
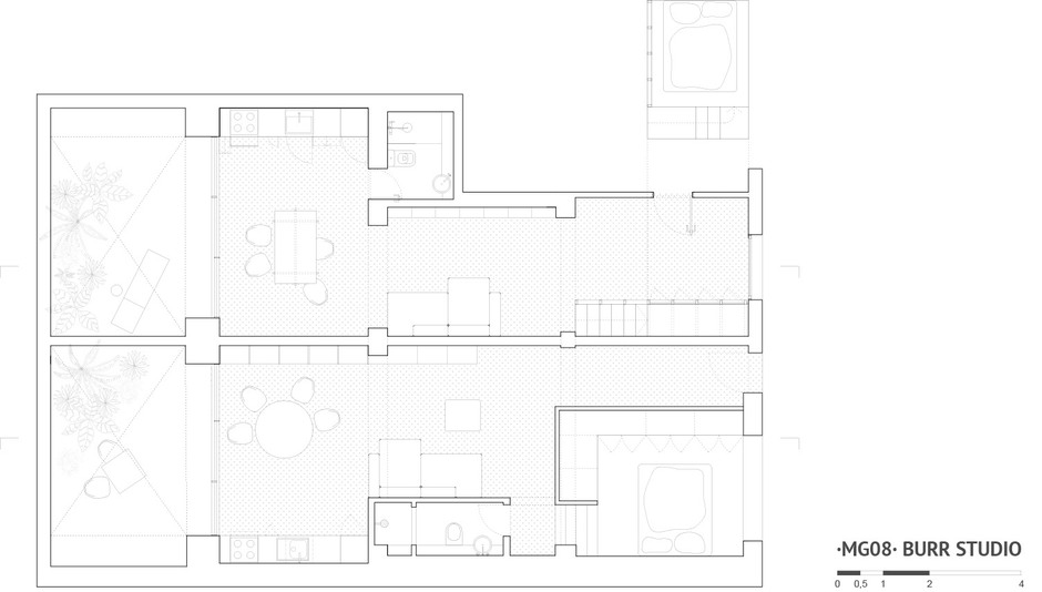
The living space is located on the first floor of a multi-story building and was divided into two separate, almost identical units. In one half live the owners*, the other is currently rented. The two apartments are separated by a soundproof wall, the demolition or modification of which was considered from the beginning. Thus, individual rooms or the entire area can be gradually reunited.

Linear sequence of spaces with plateaus and intermediate levels
The floor plans follow a clear zoning. Viewed from the street-side entrance, the bedroom, living room, and kitchen with dining area are arranged one behind the other. Full-height glazing in the rear opens to a small courtyard. Bedrooms of both units are elevated and can be reached via some steps. In order to accommodate all functions in the compact space, the designers worked with precisely planned fixtures. The untreated surfaces of ceilings and walls, especially the partition wall, illustrate the idea of a never-completed construction site. Combined with the wooden fixtures and colored tiles, a warm, homely atmosphere is nevertheless created.

Reference to previous uses
The first floor has housed industrial and commercial uses since the building's construction. A sports studio was also already located here. The architects*, who explicitly refer to the experimental approach of their practice in their self-description, refer to the building's past in many details. A yellow-tiled wall and a blue ladder, reminiscent of a swimming pool, lighten up the interior, which is characterized by raw building materials. With a great deal of lightness, the colorful references almost playfully create a strong statement for the various transformation possibilities and long-lasting design of existing buildings.

Golden Japanese Forest Grass Plant Profile And Care Guide

Comments

Popular posts from this blog

Precio benzac venezuela.

What is benzac ac 5 gel